
Предыстория
У меня есть классная история о том как стать человеком, который в объявлениях по продаже квартиры пишет: ремонт делал для себя, но обстоятельства изменились. Мы отметили новоселье в конце декабря 2021 за пару дней до нового года, потом в конце января получили предложение о работе от которого было сложно отказаться и в итоге релоцировались в испанию. Хочется зафиксировать опыт полученный при ремонте.
Отмотаем немного назад для начала. Шёл 2020 год, стукнула пандемия. Мы решили, что никакие релоакции нам не нужны, был план расширить квартиру тк в троём в двушке на пандемии не классно. Наш брак прошел не один косметический ремонт, но повторять не хотелось т.к. нервно и грязно. Хотели взять сразу с готовым и нормальным ремонтом. Но подходящих вариантов не было. В основном варианты отпадали т.к. странные планировки и велосипед было негде парковать в квартире. Вот только не смейтесь, это серъезная проблема т.к. в СПБ катал круглый год на велике и не хотелось разносить грязь по всей квартире. В итоге мы дошли до того что нам надо брать в квартиру в бетоне, делать перепланировку официальную и делать всё под себя.
Оглавление
- Оглавление
- Предыстория
- Подготовка
- Оценка бюджета
- Проект
- Решения
- Откатная дверь невидимка
- Двери невидимки
- Пробковое покрытие
- Без плинтуса
- Теневой зазор по потолку
- Подвесные столы
- Мастер выключатель
- Защита от протечек
- Ванная
- Окно в ванной
- Душевая в строительном исполнение
- Теплый пол в душе
- Бризеры
- Skype зона
- Хозяйственынй шкаф
- Измельчитель
- Фальш шкаф чтобы закрыть вент колонну
- Фановая к раковине туалета через кухню
- Стена для рисования
- Шумоизоляция
- Электрика
- Умный дом
- Поиск бригады
- Тулинг
- Стройка
- Бюджет и сроки
- Что получилось
- Выводы
- Склад видео
Подготовка

Большими мазками это выглядело так:
- Откуда смог собрал инфу по бюджетам
- Сделали проект(за деньги) и визуализации(сами)
- Приняли решения
- Откатная дверь невидимка
- Двери невидимки
- Пробковое покрытие
- Без плинтуса
- Теневой зазор по потолку
- Подвесные столы
- Мастер выключатель
- Защита от протечек
- Ванная
- Окно в ванной
- Душевая в строительном исполнение
- Теплый пол в душе
- Бризеры
- Skype зона
- Хозяйственынй шкаф
- Измельчитель
- Фальш шкаф чтобы закрыть вент колонну
- Фановая к раковине туалета через кухню
- Стена для рисования
- Шумоизоляция
- Электрика
- Умный дом
- Нашли контакты бригад, запросил сметы и сьездил на обьекты посмотреть
- Тулинг
перейти к следующей главе Стройка или на Оглавление
Оценка бюджета

Изначально плана не было, не первый ремонт. Родственники нам говорили: да что там делать, ламинат кинули, обои поклеили, в 1.5млн уложитесь и 3 месяца. ну если наймете кого то 3млн и 6 месяцев край. Но прошлые опыты наложили осадочек, плюс ипотека не мотивировали превартить ремонт в черную дыру. Хотелось чего-то прогнозируемого. Поэтому откуда смог собрал инфу по бюджетам. Данных не очень много было, но начала складываться какая-то картинка что по чем и к чему приведет.
Пробовали пообщаться с бригадами, они спрашивали сколько вешать граммов и хотели каких-то цифр. Стало ясно одно. Не зная что хочешь на выходе - сложно спланировать сколько потратишь (спасибо кэп!). Нужен был проект.
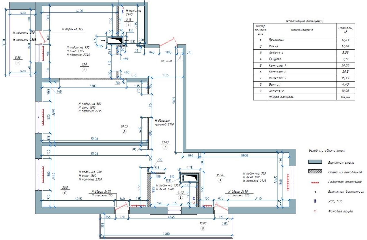
Проект

Мы никогда не делали проект ремонта и не представляли что там должно быть. спойлер, там должны быть планы демонтажа, монтажа, расположение мебели, розеток, водорезоток, схемы сложных мест. Но все эти схемы появляются не просто так, они следсвтие хотелок и насмотренности.

На самом деле этот этап один самых важных. Здесь важно понять какие задачи и цели, исходя из них получится планировка, из планировки выйдет где и что делать. Посмотрев объявление квартиру даже смотреть не хотели т.к. прихожая проходная. Но это был 2020 и цены росли как на дрожжах. Прикинув(еще до покупки прийдя на квартиру с великами), что если сделать проход из кухни в комнату, то получиться отгороженная огромная прихожая с местом для велика. А еще подкупило окно в ванной. Дальше дело техники: распланировали что да как под наши размеры великов. Тк это был бетон и времена home office, то запланировали что бы задний фон в skype zone был красивый велосипед с лампочками ильича, выключатель находился у рабочего места что бы баловаться во время митинга.
Совет: Начни делать доску в пинтересте с тем что тебе нравится или сохранять картинки на диск до того как начнешь делать ремонт.

Дальше с этими хотелками можно обратиться к специально обученным людям. они всё сделают. Мы же планировали сэкономить. Вначале прикинули планировку. Что бы не рисовать на бумаге мы использовали http://www.sweethome3d.com/ (полностью бесплатен), но тру используют https://www.sketchup.com/ у него вроде онлайн редактор бесплатен. вот итоговая визаулизация кстати:
Когда было понимание про планировку, мы подключили дизайнера по минимальному тарифу(без визуализаций, без авторского надзора) что бы нам сделали техничку: замеры, чертежи, исправить детские ошибки. Не скажу что все было супер, но как минимум мы начали думать, про узлы примыкания, сценарии использования квартиры. от первчиного проекта ушли, где-то сильно, но наличие структурированного проекта сильно упростило жизнь в будущем.
Совет: На будущее я бы попробовал экспресс дизайн от ведущих контор, а техничку сделегировал бы отрисовать кому-нибудь.
Огромная проблема данного этапа что нужно принять ОГРОМНОЕ колличество дорогих решений за не большое время, но принятые решения будут аукаться много лет. По хорошему, на выходе с данного этапа должно быть понимание чистовых материалов с артикулами.
Решения
Решения это следствия/часть проекта. они стоят денег(причем на момент создания проекта это не очевидно сколько) и должны решать какую-то задачу. Всё не получится упомянуть т.к. тогда пост станет ну слишком большим. поэтому пройдусь по основным решениям. на всидку это 30-40%.
Откатная дверь невидимка

Зачем:
- Сделать большую кухню-гостинную.
- Иметь маршрут не проходящий через грязную зону в корридоре .
- В случае необходимости иметь отдельнуюкомнату
Для единства пространства надо было максимально большой проем и что бы не было ощущения двери. Смотрели двери гармошки, накладные, распашные. Останавились на варианте откатной двери невидимки. Нас предупреждали что звукоизоляция ни какая и она правда ни какая. что есть двери, что нет. Но задача было что бы в случае чего разделить кухню-гостинную на кухню и гостинную. Что бы сильно не удивиться от цен мы взяли максимально большие из доступных дверей(220см высотой и 2х90см шириной), это задало нам параметры других частей ремеонта.

Это было одно из самых дорогих решений, т.к. оно потянуло за собой узаканивание перепланировки, кучу работы, демонтаж, увеличение размеров других дверей ну и в принципе заморочное вышло. Но оно позволило избавиться от бумажки с коэфициентами разваривания круп и записать это на дверь со стороны кухни
т.к. дверь была под покраску то смогли одну ее сторону покрыть краской под рисование мелом и магнитики
Двери невидимки

Зачем:
- Сделать одинаковую высоты проемов в квартире, исходили из высоты откатной двери невидимки.
- Нравится концепция минимализма. а тут нет доборов, наличников и дверь смотрится как часть стены.
- На нашей высоте 220см цена от обычных дверей отличалась на 10-15%.

Самый большой нюанс это то, что двери обычно ставятся в самом конце. А невидимки ставятся на черной стадии. Это влечет доп работы по стыковке смежников и тревожность что кто-то то запортачит за время ремонта
Пробковое покрытие

Зачем: Что бы ноги не мерзли когда босиком ходишь.
Бонусом получили:
- можно было уложить одним контуром без порожков по всей квартире
- не боится воды
- дополнительный слой шумоизоляции
- можно обойтись без плинтуса т.к. нет технологического зазора
- ремонто пригодность
из минусов:
- дорого
- мало расцветок
- легко повредить
Без плинтуса

Зачем:
- нравится концепия минимализма.
- не понятно как стыковать край плинтуса с дверь не видимкой т.к. там нет наличника.
- нет плинтуса = нет расходов

нюансы:
- есть решения с плинтусами не видимками. они дороги и заморочные
- чуть подешевле можно сделать теневой зазор вместо плинтуса
- без плинтуса хоть и дешевле, но не совсем бесплатно. т.к. были доп работы при укладке
Теневой зазор по потолку

Зачем: невозможно сделать идеальный стэк потолка и стены, будут неровноси, подтеки. обычно закрывается потолочным плинтусом, а это противоречит концепции минимализма.
В целом, выходит не сильно дороже обычного решения т.к. там заказывается специальный профиль, который не сильно дороже обычного. Из заморок его надо было на месте покрасить.
Подвесные столы

Зачем:
- упростить уборку и что бы робот пылесос проехать мог.
- минимализм
Из серъзных минусов это фиксированная высота стола и нельзя вставать/садиться на него. В остальном классное решение простое: заказал столешку у мебельщиков и купил кронштейны(тоже минималистичные кстати).
Мастер выключатель
Зачем:
- выходя из квартиры выключить весь свет.
- уезжая в отпуск/поход выключить всю электронику кроме нужной(холодильник к примеру).
Решения классное и удобное. фактически это 2 выключателя. один у входа и один автомат в щитке. Это требует
- заранее спланировать не отключаемые группы. т.е. знать где будет что стоять
- усложняет разводку, увеличивает кол-во проводов
- усложняет монтаж т.к. в щитке надо ставить пускатель
Защита от протечек

Зачем: перекрыть воду при обнаружение протечек
не сильно усложняет монтаж, но нужно подумать заранее об электричестве и что это должна быть не отключаемая группа. есть мнение что если нормально сделана сантехника то нет смысла ставить защиту.
Ванная

Тут комплекс решений которые отмечу:
- Скрытая ниша для шампуней, что бы не видно было их когда заходишь
- Что бы не штробить несущую стену с окном
- сделали короб основание в котором спрятли трубы и там же ревизионный люк
- перенесли душевую стойку по середине, это оказалос очень удобным
- ревизионный люк у ванны, что бы был доступ к сифону. и что бы в принципе к сифону можно было подлести заказали ванную со сливным отверстием по середине
Окно в ванной

Зачем:
- оно было и мы не выбирали
- прикольно смотреть в окно на закат когда зубы чистишь
- можно проветрить и понизить влажность

самая большая проблема что в ванной сложно зеркало расположить.
Душевая в строительном исполнение

Зачем: отдельно стоящая душевая смотрится ужасно т.к. не сделать нормально стыки
Хорошее решение, но не изебжно будет порожек, т.к. нужен уклон. Стоит денег т.к. много работы, трап тоже не дешевый.
Теплый пол в душе
Зачем: что бы ноги не мерзли когда в душе.
Оно не сильно добавляет к цене если уже делаешь теплый пол. это фактически просто докинуть 0.5м2 теплого пола.
Бризеры
Зачем:
- свежий воздух
- отсуствие сквозняков
- фильтрация грязи
решение классное в для климата СНГ. что бы сделать скрытый монтаж нужно заранее провести провод в нужное место. а это означает состыковать бригаду и бризерщиков. тут мальца не продумали и шторы в 2 комнатах выпирают уперевшись в бризер.
Skype зона

Зачем: работаем из дома, сразу запланировали рабочие места, что бы сзадни был красивый фон.
Фишкой стал светильник, выключатель которого рядом с рабочим местом.
Хозяйственынй шкаф

Зачем: сложить всё нужное и не было захламления
Однозначно делать и делать максимально большим. это драматически уменьшает кол-во видимого хлама в квартире. Сделали пасхалку внутри шкафа: остатки меловой краски пустили на стену и можно отмечать когда была уборка или что купить
Измельчитель
Зачем: что бы не заванивался мусор
Делать, из сложностей заранее заложить розетку под него.
Фальш шкаф чтобы закрыть вент колонну

Зачем: на кухне проходит колона вентиляции с которой сложно состыковаться. смотрится не красиво
Сложностей ни каких особо, мебельщики всё сделают. но по цене считай отдельная колонна. Высоту полочек планировали под бутылки вина - хотели винный шкаф. но это скорее получился чайный шкаф.
Фановая к раковине туалета через кухню

Зачем: не штробить стену, но получить раковину в туалете
это прям была проблема, конфигурация туалета с трудом позволяла всё уместить. пришлось идти на такие хитрости. для этого надо было на кухне сделать шкаф с отсутупом 10см и в туалете мебелью закрыть часть трубы. Доп работы на столярке, но других вариантов не было.
Стена для рисования

Зачем:
- заметки вести
- выделить ребенку месту где можно рисовать
дорогая краска, магнитики не все держатся, мел осыпается. Но в остальном очень классное решение.
Шумоизоляция

Зачем:
- на потолке: не слышать соседей
- на стене:
- шумоизолировать спальни
- на несущей стене было слишком много розеток, что бы не штробить и неослаблять ее
Мы сильно не упарывались здесь и делали по принципу паррето. 20% усилий - 80% результата. поэтому делали из общестроительных материалов
Электрика

здесь отмечу одной строкой разное, что ок
- проходные выключатели
- розетки в откосах
- реле напряжения
- Мастер выключатель
- Защита от протечек требует розетки
- Теплый пол в душе тоже надо планировать
- Бризеры надо выводить провод если не хочешь свисающих соплей
- Skype зона подразумевает что подумал головой
- Хозяйственынй шкаф
- Измельчитель без розетки работать не будет
- обязательно надо делать развертку кухонной стены что бы состыковываться с кухоньщиками
- розетки можно сделать в цоколе для техники
- распаячные коробки можно вывести в шкаф
Умный дом

Были мысли сделать, но когда прикинули бюджет, поняли что мимо, поэтому ограничислись отдельными решенями
- в шкафу предусмотрели не отключаюмую группу и розетки для роутера, хранилики
- Защита от протечек подключается и доступна через приложение
- Теплый пол в душе настраивается через NFC(пришлось обновить телефон даже)
- Бризеры подключаются и доступны через приложение
- вентили для батарей пробовали, но оказались бестолковые
- робот пылесос(кстати тоже не отключаемая группа автоматом отпуск)
- Мастер выключатель сделали в физическом исполнение
вобщем нет какой-то единой системы тк это подняло бы цену драматически, но элементы для комфорта добавили
Поиск бригады

Было несколько этапов
- Сбор информации. Как вы догадались люлблю гуглодоки. Поэтому завел табличку, где собрал контакты бригад, фирм.
- Всем разослал предфинальную версию проекта для осмечивания. часть захотела приехать на квартиру посмотреть что да как.
- Выбрал нескольких и съездил к ним на объекты которые в работе и посмотрел что там творится:
- грязно ли?
- как относятся к материалам, укрывают или в кучу сваливают
- аккуратно ли трубы/провода уложены
- какой инструмент, в каком состоянии
- позадовал рандомные технические вопросы про узлы примыкания, выбранные решения итд.
- спросил контакты готовых ремонтов и попросил пообщаться(а одних даже зашел посмотреть) с заказчиками:
- спрашивал какие косяки были
- смотрел сложные стыки как сделаны
Всё это позволило отсеять кадров типа: дай аванса 1000р на перфаратор и завтра выходим(авторская орфография сохранена). у хороших бригад/контор:
- все распланировано и завтра они не выйдут.
- на объектах приемлимо чисто/грязно
ну и дальше собственно выбор(попробуйте угдать кого кстати из списка взяли. в большинстве своем). в принципе все кто остался в шот листе, видно было что нормально работают и примерно одинаковые. Так что выбирали с кем было проще общатся и кто отвечает в телеграме.
Тулинг
Что бы это не превратилось в хаос у нас был разнообразный тулинг
Таск трэкер

Задачи(что бы отслеживать и не забыть ничего) в trello.com (автоматом с календарем синкается). Идея конечно была с бригадой вместе вести трелло, но ребята как-то не оценили идею. В итоге это был лично наш инструмент. карточки были местом хранения знаний по конкретному вопросу(какие артикулы выбрали к примеру и прочие ссылки полезные) и плюсом можно было оттрэкать не доделки. т.е. было некое подобие канбан
- notify: пришел увидел не прокрас, сфоткал, занес в карточку или вернулось из check
- todo: отослалал прорабу
- wip: оно в работе
- check: прораб говорит готово
- done: все ок
- ignore: забить
по совместительству это была база знаний: какие видео посмотретЬ, обсудить, что заказали
Заметки и эскизы

оперативниве заметки в блокнотике. прийдя на квартиру на место нужно было что-то нарисовать и обсудить как делать.
Таблички


Из очевидного в гуглодоке можно
- вести бюджет из очевидного
- планировать мебель что бы банально понять какого размера нам нужны шкафы
- расписписать все выключатели, с их функциями, а потом автоматом считать каких позиций сколько купить нужно
- вести хронологию
Рюкзак

рюкзак в котором лежат образцы материалов(пол, столешнница, фасады), проект, блокнот для заметок
Архив
Это файло шара куда сливали фотки, инструкции, чеки. Тут в посте подробней расписал что да как организовано https://vas3k.club/post/2193574/
Стройка
перейти к следующей главе Бюджет и сроки или на Оглавление
Закупки
Как правило разделение такое:
- черновые материалы как правило стандартные, стоят прогнозируемо и закупает бригадир и потом отчиывается.
- чистовые материалы слишком разнообразные и закупает заказчик
- бригада не занимается разгрузкой/подъемом и на это надо отдельно закладывать бюджет при доставке или нанимать чернорабочих

Безусловно на черновых материалах не радивый бригадир может навариться. Купить дороже или же купить со скидочной картой и вернуть себе бонусы(так работает петрович). Но если бегать и закупаться самому то надо быть вовлеченным в процесс что бы в задержать стройку т.к. работа основная есть или купить не то. А если учесть что материал может уйти не нормативно и весь контроль закупок сойдет на нет. Тут поможет только если нанять норм бригады, смириться и сэкономить нервы(мы так и сделали) или же нанимать со стороны строительный надзор.

с чистовыми материалами бригада не поможет, это скорее к дизайнеру. Но вроде все просто: ходи, выбирай, показаывай чертеж что бы продавец посчитал сколько тебе надо. Но есть приколы. Белых цветов много и у разных производителей могут быть разные белые. Мы делали сами, поэтому минимзировали колличество цветов и их сочетаний. Алгоритм был такой:
- у дверщиков выбрали двери
- у кухонщиков выбрали столешку и фасады. столешки взяли лдсп эггер как акцент и фасад светло серый как заполняющий взяли образцы
- напольное покрытие выбрали пробку что бы ноги не мерзли и взяли на всю квартиру, цвет выбрали светло серый что бы сочетался со всем . взяли образец
- керамогранит взяли 2 цветов: основной(нейтральный серый бетон или мрамор) и акцент в виде дерева(подогнали под цвет столешки). он же пошел на фартук
- краску выбирали просто. принесли наши образцы и там попросили подобрать основной цвет и акценты синий
- аксессуары(ручки, краны, выключатели) брали черный
на выходе получилось что можно и без привлечения дизайнера собрать картинку. да не супер пушка, но при минимуме усилий годная картинка.

при закупе нужно учитывать размеры. порой физически что-то может не влести если не оставить зазор. мы хотели краны отдельно стоящие и круглые раковины, но кран не мог быть выши дверцы открывающегося шкафа и раковина не могла быть больше определенных размеров - тогда не было бы места для унитаза.
Как с таким бороться?
- первично помогала визуализация увидеть странные места
- если намечалась проблема то делали масштабный макет в реале(скотч на полу что бы разметить) и оценивали какого оно
- результаты записывали в трелло/корректировали на плане
- при поиске артикула нужного смотрели ограничения которые у нас появились

Из приколов:
- Мы не хотели серебристый полотенчик в ванную. заказали на сайте черный. Оказалось его ждать 4 месяца пока изготовят
- позицию ты должен выбрать в начале, а приедет она к тебе потом. если сразу не оплатить то цена уедет. А если оплатил, то где хранить?
Здесь помогало проставление дат, ведение гуглодоков и общение. в прочем как и в ведние любого другого проекта.
Оно может звучть дико сложно, но мы вобще в принципе старались не напрягаться. Пошли выбирать краску? давай сделаем из этого прогулку по детским площадка и зайдем в барчик. подумаем как цвет лучше. Большая проблема была управлять сроками доставок/изготовления и где все это хранить.
Подрядчики
Бригада не может закрыть все вопросы, всегда есть спец мотаж. Если нет авторского надзора, то состыковка их между собой ложится на плечи заказчика.
Двери
Вначале делается дизайн проект и тогда понятно что и сколько заказывать. Если двери невидимки то работы усложняются т.к. двери ставятся сразу. В случае откатной двери необходимо было синхронизировать монтажника двери(т.е. знать кто будет мониторивать) с бригадой - эта часть была самой сложной.
Если исключить откатную дверь или как-то заменить, то была бы простая часть ремонта.
Кухня и столярка
Очень отвественная, дорогая и сложная часть. Т.к. на стадии дизайн проекта надо понимать
- какие ограничения и допуски по производству есть
- какие доступны материалы, расцветки
план работ примерно такой:
- примерный дизайн проект
- синхронизация с мебельщиками и выбор матриалов
- финализация дизайн проекта
- опала мебели и кухни
- начало ремонтных работ
- съем финальных размеров для производства
- окончание ремонта
- чистовой монтаж
Здесь необходимо учитывать и синхронизировать очень многое. порой это не очевидное:
- где расположить трэковые светильники что бы не мешали открытие дверец шкафа
- где расположить розетки что бы к ним был доступ
- как подвинуть кухню что бы влезла труба
- каких размеров сделать нишу
- на сколько подымется пол
Бризеры
Без делегирования не обойтись т.к. необходимо бурить отверстие. Здесь синхронизация с электриком важна. Можно на чистовой стадии пригласить уже, но лучше делать в несколько этапов
- узнать возможность монтажа и передать инфу дизайнеры
- пробурить отверстие
- чистовой монтаж
не сложный этап, чуточку внимания и фиксирования
Согласование перепланировки
Очень отвественный и нервный этап. Однозначано делегировать. но то что согласовывать должно быть синхронизировано с проектом, дизайнером. То что дизайнер придумал должно быть согласовываемым. В основном небольшое колличество переписки в почте для синхронизации. А дальше очень долгое ожидание. Без согласования не начинали демонтаж, а это стопорило работы. По хорошему надо было начинать сразу как начали проект разрабатывать.
План такой:
- придумать планировку
- подготовить дизайн проект
- на основание дизайн проекта готовится проект перепланировки
- собираются соглсаия с банка если есть ипотека, ук итд
- подаются документы
- ждать ждать
- ремонт
- приемка комиссией
- обновление документов
Приемка
По хорошему для этого нужен авторский надзор что бы контролировать скрытые работы. У нас эта часть была сделегирована прорабу. Т.е. изначально выбрав адекватного исполнителя. Вероятно что-то переплачено за это было. Но зато у нас не так много нервов ушло.
Косяки
Самый большой косяк у нас был что бригада написала модель инсталяции которую купили(т.к. это черновые материалы), мы купили под нее кнопки(12к за штуку), а не подошли т.к. нам не ту модель написали. Кнопки у нас бригада выкупила.
В основном проблемы были масштаба
- не прошли шов затиркой где-то
- заляпали краской
- не то колличество розеток поставили
- завалили угол стены(выяснялось на монтаже кухни)
- ямка при покраске
вобще ничего такого драматического не было. но что бы всё это не забыть использовал trello.
- увидел, сфоткал, завел карточку
- в следующий раз проверил что да как
- если нужно продублировал прорабу в телегу
у нас схема работала т.к. ремонт проходил в соседнем доме и могли часто наведываться и держать руку на пульсе.
Бюджет и сроки
перейти к следующей главе Что получилось или на Оглавление
Сроки

Мы планировали закончить ремонт до нового года 2021. В принципе мы и закончили до НГ, правда 2022 года. Почему?
- проект начали делать только после получения ключей
- бригады искать начали к окончанию подготовки проекта
- перепланировку узаканивать начали после проекта
- работы по демонтажу начали только после получения разрешения
Бюджет
Абсолютные цифры бесполезно писать, т.к. они элементарно различались сильно даже в пределах года. поэтому распишу где сильнее всего просчитались и какая часть сколько вышла в процентах от общей суммы
формат: % от плана / % от ремонта - позиция
- -1.29 / 14.03 - черновые материалы
- -0.13 / 6.41 - чистовое напольное
- -0.49 / 5.82 - Малярные работы
- -1.52 / 5.46 - работы санузлы
- 0.35 / 5.15 - кухня
- -0.31 / 5.14 - меж комнатные двери
- -0.13 / 4.88 - Потолок ГКЛ+звукоизолция
- -0.33 / 3.47 - встроенный шкаф в прихожей
- 0.1 / 3.2 - краны + раковины
- -1.2 / 3.17 - электрика: прокладка кабеля
- -0.1 / 2.69 - бризеры
- 0.08 / 2.66 - керамогранит
- -0.57 / 2.62 - Подготовка под скрытые двери/оконные откосы
- -2.48 / 2.48 - декор
- -0.87 / 2.2 - Светильники
- 0 / 2.2 - краска
- 0.57 / 2.13 - чистовая электрика
- -0.3 / 1.82 - полы
- -0.04 / 1.69 - согласование перепланировки
- -0.62 / 1.56 - холодильник
- -0.81 / 1.44 - стол рабочий
- -0.54 / 1.36 - электрика: монтаж чистовой
- -0.42 / 1.36 - стиралка
- 0.37 / 1.2 - защита от протечек
- -0.04 / 1.14 - дизайн проект
- -0.52 / 1.08 - демонтаж/монтаж
- -0.03 / 1.05 - ванна чугунная
- -0.53 / 1 - полотенцесушители
- -0.93 / 0.93 - вынос мусора, уборка, переноска
- -0.42 / 0.93 - электрика: подрозетники, щиток, распредкоробки
- -0.45 / 0.92 - трэковые светильники
- -0.9 / 0.9 - подоконники
- -0.2 / 0.89 - входная дверь
- -0.26 / 0.73 - морозилка
- -0.08 / 0.71 - посудомойка
- -0.02 / 0.68 - комод
- 0.46 / 0.64 - тумба в ванную
- 0.01 / 0.51 - стол кухонный+стулья
- -0.02 / 0.47 - звукоиозоляция стен
- -0.06 / 0.46 - микроволновка
- 0.17 / 0.46 - духовка
- -0.41 / 0.41 - измельчитель
- 1.18 / 0.39 - кровать+матрас
- -0.09 / 0.38 - Демонтаж/монтаж радиаторов
- 0.08 / 0.3 - фильтры для воды
- 0.22 / 0.24 - отделка лоджий
- -0.04 / 0.23 - светильники в санузлы
- 0.08 / 0.23 - замена уплотнителей в окнах
- 0.34 / 0.13 - крючки и полочки в коридоре
- 0.28 / 0.04 - душевая кабина
- 0.13 / 0.03 - домофон
- 0.09 / 0 - коврики в коридор
- 0.25 / 0 - зеркало в ванную и туалет
- 0.31 / 0 - зеркало на стену
- 0.31 / 0 - проточный водонагреватель
- 1.57 / 0 - диван
- 2.65 / 0 - тканевые потолки
Что получилось
Что запланировали, то и получили, единственное перед отъездом не успели:
- натянуть потолок в корридоре, ванной, туалете
- заказать и поставить 4 зеркала с подсветкой
Теперь смотрим резльутат. визуализация:
И по факту:
перейти к следующей главе Выводы или на Оглавление
Кухня


Ванная




Туалет

Гостинная



Выводы
- Без планирования это была бы фантастика сделать.
- Можно было бы сделать дешевле, но не сильно
- Чтобы сделать сильно дешевле надо было бы отказываться от части решений
- откатная дверь
- меньше розеток
- шумоизоляция
- заказная мебель
- техника попроще
- Можно было сделать быстрее сами работы, если давить на бригаду
Опыт интересный, даже наверное, можно повторить.
Склад видео
- с чего начать думать про планирвоку
- светильники
- цветовая температура
- антресольные кухни
- керамогранит
- скрытый плинтус
- ванная
- натяжные потолки
- цвета
- акцентные стены
- каналы
- Тут идеи смотреть https://youtube.com/c/Geometrium
- Тут теория https://youtube.com/user/archwooddesign
- Тут тоже структуризация знаний про дизайн https://youtube.com/user/archwooddesign
- Пафосно но можно идеи подчерпнуть https://youtube.com/c/DNEVNIKDIZAINERA
- Матчасть про работы https://youtube.com/c/KODOLOV
- Бывает норм https://youtube.com/c/www3208ruTV




Круто сделано и красиво. Минимализм тоже нравится, наверно, ты тоже насмотрелся на захламленные квартиры, в которых рос
Жилище велосипедопоклонников :) лайк!
Я к такому самостоятельному проектированию-планированию был изначалаьно не готов в своем ремонте, но знал, что обо всех нюансах-мелочах за меня кто-то должен подумать. Иначе получится не "квартира мечты", а "квартира-как-получилось", что меня не устраивало. В итоге отделись в руки профессиональным дизайнерам, с сопровождением ремонта и т.п. На первых этапах было "интервью", где все наши заебы (в т.ч. и где разместить велик, что б не таскать через всю квартиру на балкон, как сейчас) были выслушаны и учтены. Потом проект, потом реализация. Дороже, конечно, но сильно проще в плане нагрузки на мозги. И, самое главное, думают за тебя о таких вещах, которые бы и в голову бы не пришли (тк мы ремонты раньше не делали).
Привет, спасибо за отчет, очень интересно было читать.
Есть вопрос:
можешь прокоментировать почему? я жил в квартире с душем посередине, постоянно бился об него когда разворачивался. Но там была классическая узкая ванна.
Спасибо за статью! Почитал с большим интересом. Мы сейчас сами в процессе разработки дизайн-проекта с дизайнером.
Скажи, а почему умные краны на батареях тебе кажутся бестолковыми?
У нас централизованное вертикальное отопление. Думаю поставить по два умных шаровых крана на каждую батарею чтобы можно было в зависимости от показаний датчиков температуры выключать или выключать автоматически.
Очень полезно, спасибо!
Насколько тяжело было расставаться с квартирой при переезде и имеет ли смысл ввязываться если в ближайшие 3 - 5 лет планируешь переезд?
Офигенно! Пока читал стрессанул от количества планирования и менеджмента
кайф. тоже делаем ремонт сейчас. для себя, но в то же время под будущую аренду. поэтому пытаюсь продумать еще максимальную антивандальность и ремонтопригодность.
подскажи, пожалуйста, пробковое покрытие клеевое иди какое? я понимаю, что пробку просто испортить, но насколько? какие именно действия портили покрытие?
Браво!
Вот это планирование и подготовка, и очень полезный пост для кого то!
Статья супер! Я только после ремонта, который на 90% делегировала дизайнеру и строителю - по итогу не очень довольна 😅 в следующем ремонте думаю стремиться к подобной степени планирования
Можешь, пожалуйста, раскрыть тему шумоизоляции? Сколько слоев, из каких материалов, какая толщина изоляции получилась, изолировались ли розетки и т.д.
Вот это подход! 🚀
Мы сейчас тоже делаем ремонт и уровень моего участия в нем какой-то совсем низкий. Только деньги перевожу и привожу всякое 🤣
По-доброму завидую вам!
😱 Комментарий удален его автором...